6600 Alaska's Best Place, Building B, Anchorage, AK 99518
6600 Alaska's Best Place, Building B, Anchorage, AK 99518
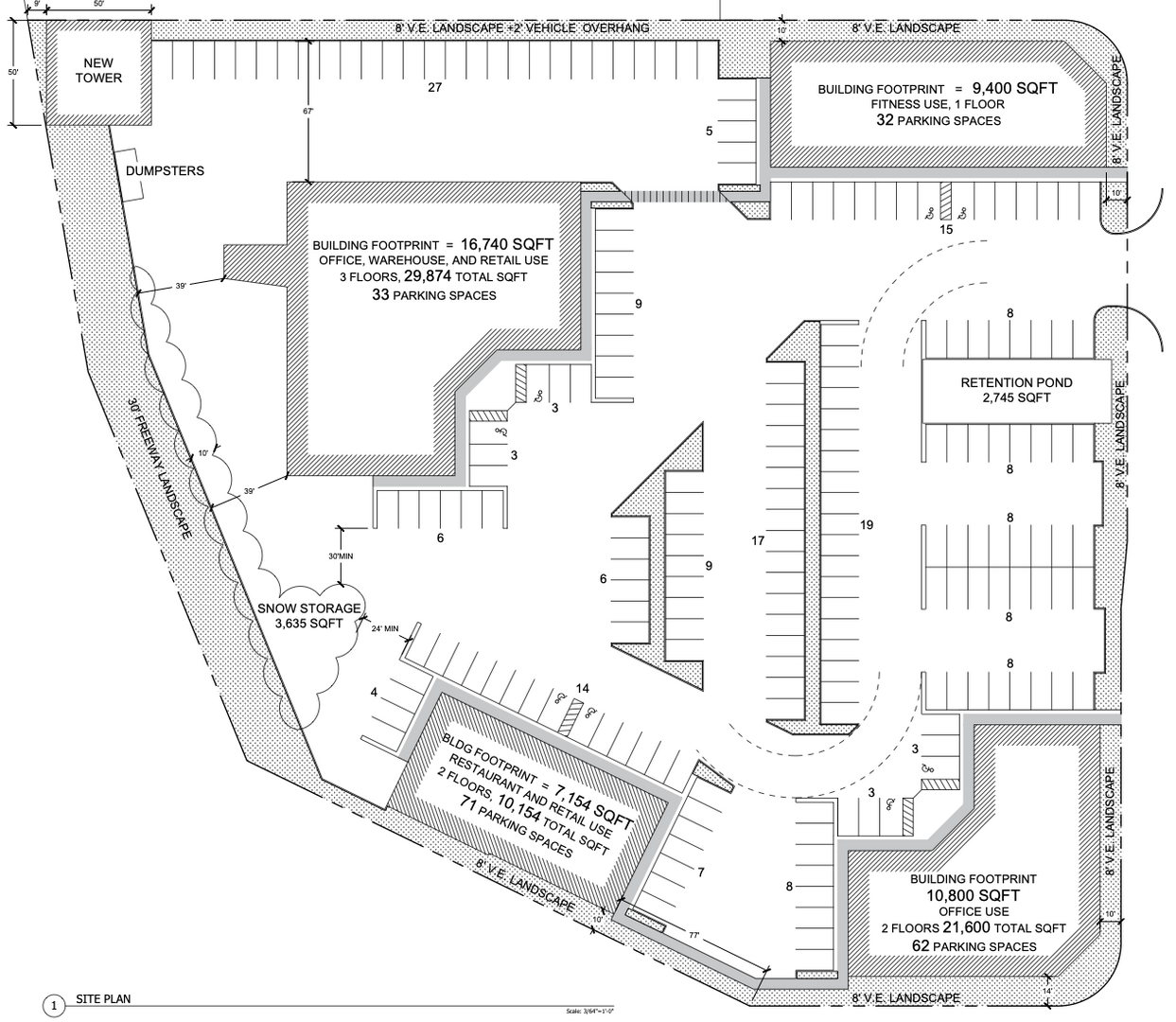
PRE-LEASING RASPBERRY PARK!
PRE-LEASING RASPBERRY PARK! Build-to-suit office, retail & restaurant space centrally located w/sweeping views of the Chugach Mountains. Raspberry Park will consist of 4-unique buildings which will include a restaurant featuring an expansive roof top deck, retail space & a 2-story professional office bldg w/elevator. With traffic counts 37k+ daily, this development offers ample opportunities.
Building B
- Sq Ft Min: 1500
- Sq Ft MaxL 10,154
- PSF: $2.75
Building B
- Sq Ft Min: 1500
- Sq Ft MaxL 10,154
- PSF: $2.75
Contact us:







